10.90mx15.50m First and Second Floor House Plan DWG file
Description
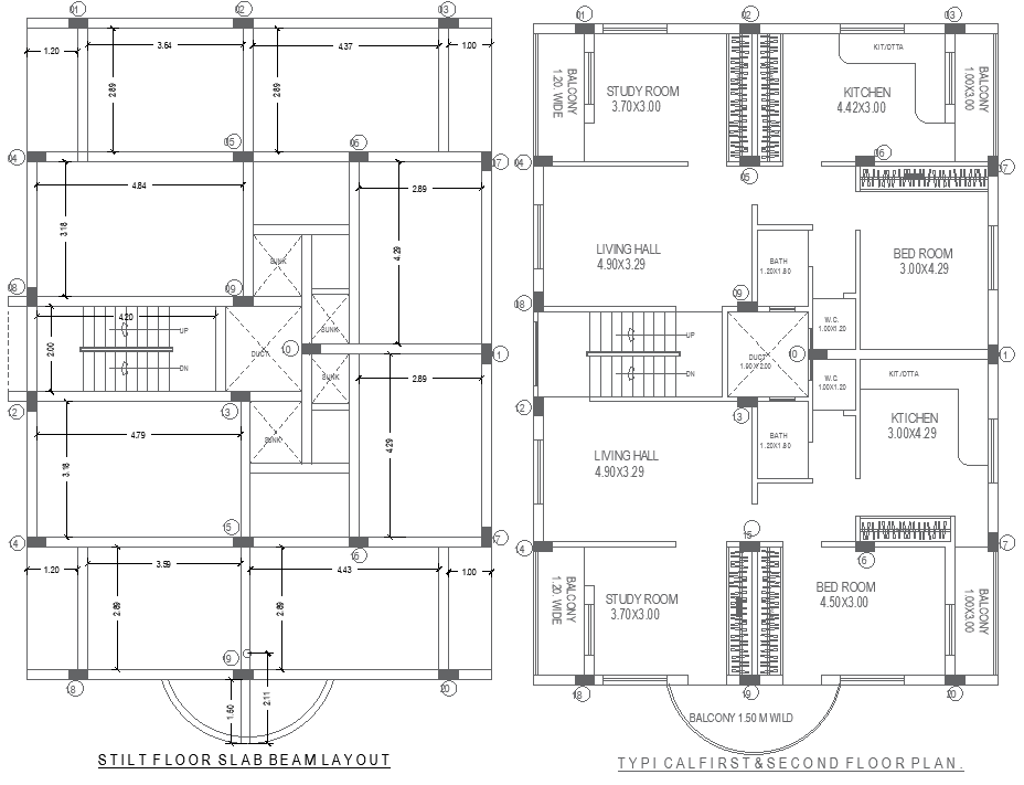
This 10.90m x 15.50m AutoCAD DWG file provides an intricate house plan covering the first and second floors, complete with a slab beam layout. The design includes essential spaces such as a study room, kitchen, bedroom, bathroom, living hall, open-to-sky area, and detailed stair layout. Ideal for architects, engineers, and builders, this layout ensures precise planning and structural integrity by incorporating slab beam details that enhance stability and load distribution. Whether used for residential or commercial construction, this DWG file aids in creating well-organized, functional, and robust architectural designs, enabling a seamless building process with accurate measurements and specifications.

Uploaded by:
Eiz
Luna

