77.1ft x 34.1ft Library Interior Layout Design - AutoCAD DWG File
Description
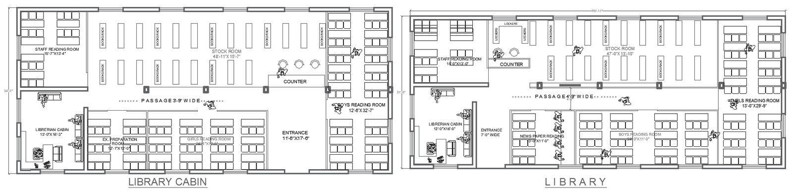
Explore this detailed 77.1ft x 34.1ft library interior layout design in AutoCAD DWG format, specifically crafted for a comprehensive library setup. This layout includes essential sections such as a librarian cabin, entrance, staff reading room, counter, stock room, books rack areas, and designated boys' and girls' reading rooms. The layout also incorporates locker facilities and organized passageways, creating a functional and efficient library environment. Ideal for architects and designers, this DWG file supports optimized space utilization, ensuring a well-structured library that meets the needs of both staff and visitors. With a focus on accessibility and organization, this design is perfect for educational institutions and public library projects.

Uploaded by:
Eiz
Luna

