14m x 21m Ground Floor Hospital Layout With First And Second Floor House Plan AUTOCAD DWG File
Description
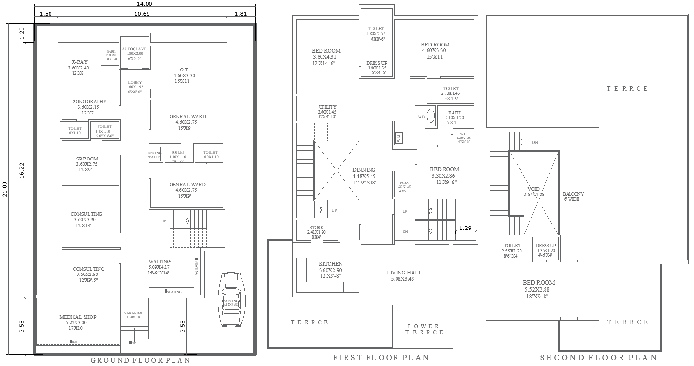
This detailed 14m x 21m ground-floor hospital layout has an integrated first and second-floor residential house plan, making sure all activities run in harmony. The ground floor is optimized for healthcare as it consists of essential facilities, including a medical shop, consultation room, general ward, special private room, operating theater, X-ray, sonography, and autoclave area. The upper floors have residential rooms that include a bedroom, kitchen, living hall, bathroom, dining area, and a staff or family accommodation terrace. The AutoCAD DWG file is accurate and labeled with zones for every space, making it possible to construct and plan the interior. This is the best design for architects, engineers, and builders looking for a versatile design balancing professional healthcare and residential comfort.

Uploaded by:
Eiz
Luna

