30ftx40ft House Plan Layout Design in AutoCAD DWG File
Description
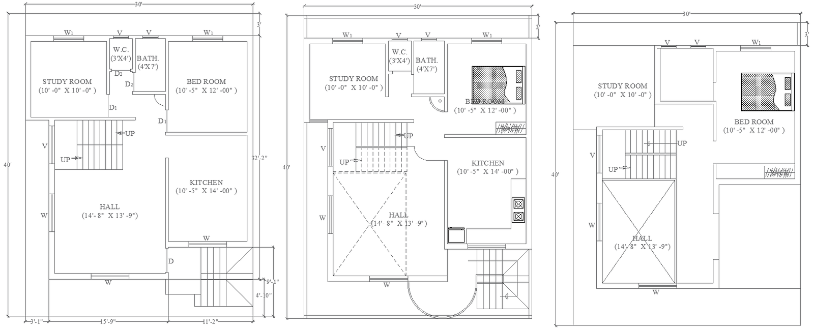
This 30ft x 40ft house plan layout is ideal for families seeking efficient and comfortable living spaces. The ground floor includes a spacious living hall, well-planned kitchen, study room, bedroom, and bathroom, while the first floor provides an additional bedroom and terrace for relaxing outdoor space. Detailed stair arrangements are provided for smooth connectivity between floors. This layout is provided in an AutoCAD DWG file and is ideal for architects, builders, and homeowners who are in a quest for a functional space with modern design. Ideal for compact plots, the house plan optimizes the spaces without sacrificing comfort to house small to medium-sized families.

Uploaded by:
Eiz
Luna

