21.6ft x 60ft Shop and Hotel Layout Design – AutoCAD DWG File
Description
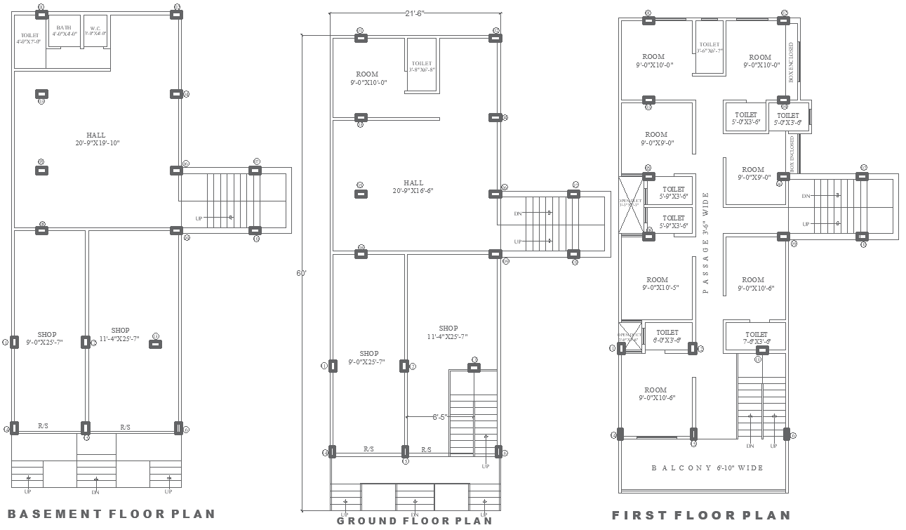
Find the beautifully crafted shop and hotel layout design that measures 21.6ft by 60ft, coupled with the extensive use of basement, ground, and first-floor detailed plans. In this one-stop AutoCAD DWG, contains the complete use of a beautiful bathroom, a great hall, a well-behaved bedroom, a graceful staircase, a usable passage, and an open-to-the-world balcony. It was open to the sky in every space for free exposure to fresh air and plenty of sunshine. Good architects, builders, and even investors can find this house design quite perfect for maximizing usage areas with functionality in a place of both commercial and residential. Download the AutoCAD file to bring your very own vision to life, full of fine and precise architectural insights.

Uploaded by:
Eiz
Luna

