23.1ft x 61.7ft Hotel and Shop Layout Plan with Basement, Ground & First Floors - AutoCAD DWG
Description
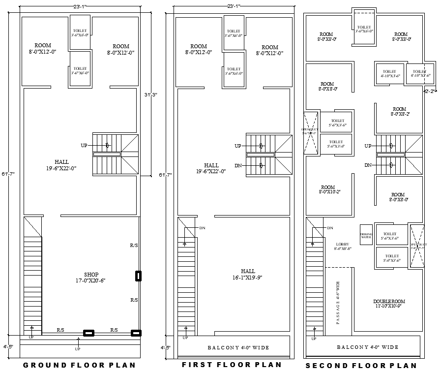
Explore a meticulously planned 23.1ft x 61.7ft hotel and shop layout design, complete with basement, ground, and first-floor plans in AutoCAD DWG format. This comprehensive layout includes essential areas like rooms, halls, bathrooms, lobby, and balconies, alongside a spacious shop on the ground floor. Designed for optimal flow and functionality, each floor is crafted to maximize space efficiency, ensuring a balanced arrangement between commercial and hospitality areas. Perfect for architects, designers, and planners, this DWG file offers a versatile blueprint for creating a seamless, well-organized multi-floor structure suited for both retail and accommodation purposes.

Uploaded by:
Eiz
Luna

