28m x 25.80m 3-floor Building Layout with Shops, Parking, and Apartments Plans – AutoCAD DWG

28m x 25.80m 3-floor Building Layout with Shops, Parking, and Apartments Plans – AutoCAD DWG
Profile

Uploaded by:

Eiz

Luna

Description
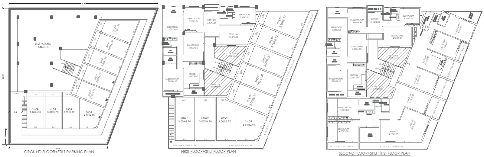
Explore a comprehensive 28m x 25.80m 3-floor layout design with AutoCAD DWG file. This plan features a ground floor with multiple retail shops and a spacious stilt parking area, while the first and second floors are designed for residential apartments. The layout includes essential details such as bathrooms, balconies, kitchens, living halls, bedrooms, and staircases, creating a functional, multi-use building ideal for commercial and residential purposes. Perfect for architects, developers, and business owners, this plan optimizes space and usability across all floors.
Profile

Uploaded by:

Eiz

Luna

find Latest

Related Files

WhatsApp Chat