33ftx66ft 4BHK Ground and First Floor House Plan DWG File
Description
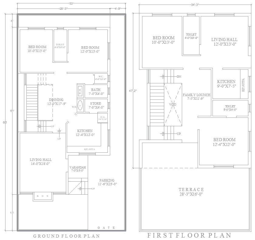
Explore this spacious 33ft x 66ft ground and first floor 4BHK house plan, available as an AutoCAD DWG file. This detailed layout includes essential elements for comfortable living, such as parking, bathrooms, bedrooms, a kitchen, a terrace, a dining area, a verandah, and a convenience store room. Designed with precision, this layout offers a practical flow for a 4BHK home, with stairs details connecting both floors seamlessly. Ideal for architects, builders, and homeowners, this DWG file provides accurate measurements and comprehensive structural details, making planning and execution easy.

Uploaded by:
Eiz
Luna

