18.75x22.24m Residential House and Shop Layout Design
Description
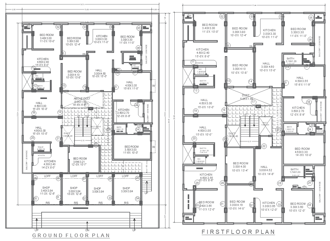
Explore this 18.75m x 22.24m residential building layout that combines a house and shop plan across the ground and first floors, with a detailed AutoCAD DWG file. The design includes essential areas such as bedrooms, bathrooms, kitchen, living hall, open-to-sky area, staircase details, balcony, loft, and passage. Ideal for residential and commercial purposes, this plan balances functionality and modernity. Perfect for homeowners or builders seeking a multi-purpose design, this layout maximizes space and offers flexibility. Download the AutoCAD DWG file to bring this versatile building design to life.

Uploaded by:
Eiz
Luna

