Residential Building Front Elevation and Section Plan Design AUTOCAD DWG
Description
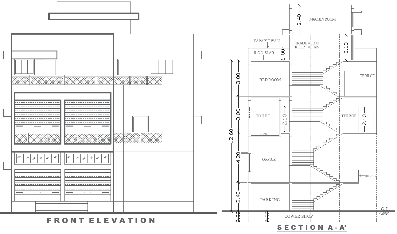
This mixed-use building elevation and section plan showcases an efficient, multi-story layout designed to accommodate both commercial and residential needs. The front elevation presents a modern, symmetrical facade with distinct areas for commercial storefronts at the lower levels and residential balconies on the upper levels, offering an attractive, versatile design. The sectional view (Section A-A') provides a detailed look at the internal structure, including ground-level parking and lower shop spaces for convenient accessibility. Above, the layout transitions to offices, followed by residential spaces on the top floors with bedrooms, bathrooms, and terraces for added outdoor space. The stairs connect each level seamlessly, and a machine room on the rooftop allows for easy maintenance access. This floor plan is ideal for developers and architects looking to create a multifunctional building that balances commercial and residential use, providing a flexible option for urban developments. Perfect for a wide range of applications, this plan emphasizes efficient space utilization and a comfortable living experience for residents, while offering practical commercial spaces below.

Uploaded by:
Eiz
Luna

