20ftx45ft 4BHK House Front Elevation and Section Plan
Description
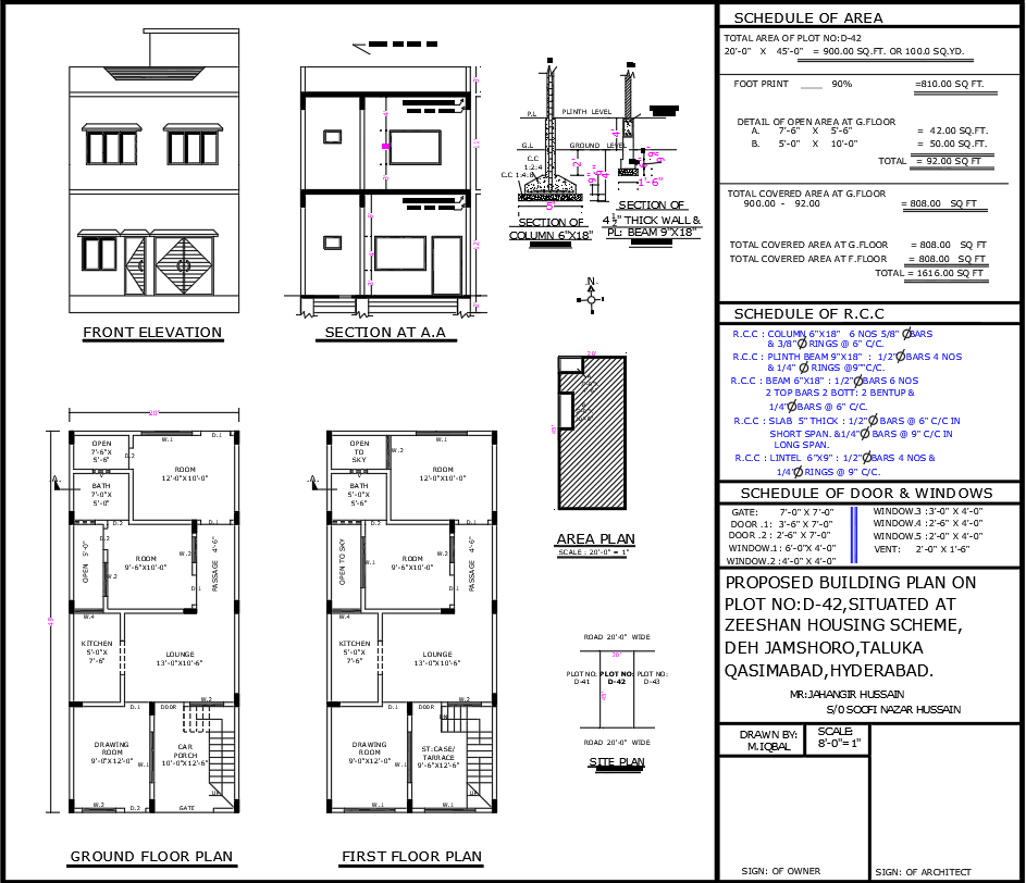
This AUTOCAD DWG file offers a comprehensive 20ft x 45ft 4BHK house plan with detailed front elevation and section layouts. The design includes four bedrooms, bathrooms, kitchen, lounge, drawing room, and car parking, ensuring a complete and functional living space. Key features like an open-to-sky area, passage, and stair details add to the architectural appeal, providing ample light, ventilation, and accessibility. The layout is optimized for comfort and efficiency, with every detail carefully planned for practical use in modern urban environments. Ideal for architects, builders, and homeowners, this DWG file is a valuable resource for creating a stylish, spacious, and well-structured residence with a functional front elevation and section plan.

Uploaded by:
Eiz
Luna

