20ftx50ft 6BHK House Plan Ground First Second Floor DWG File
Description
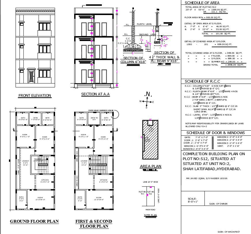
This AUTOCAD DWG file presents a detailed 20ft x 50ft 6BHK house plan spread across the ground, first, and second floors. The design includes complete elevation and section plans, offering a well-rounded view of the building structure. Each floor is meticulously designed with essential spaces like bedrooms, bathrooms, a kitchen, a lounge, and an open-to-sky area for ventilation. Additionally, the site and area plans are included for easy reference, making it a comprehensive resource for architects, builders, and homeowners. This 6BHK layout is ideal for large families or spacious living, combining functionality and modern design elements in a practical and visually appealing blueprint.

Uploaded by:
Eiz
Luna

