House front elevation and staircase layout in DWG file
Description
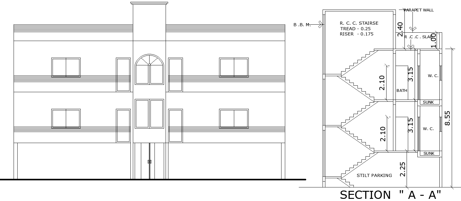
Discover a comprehensive house front elevation design complete with detailed staircase sections, RCC slab information, and wall specifications, all in an accessible AutoCAD DWG format. This layout plan also includes dedicated spaces for bathroom facilities and parking, which are ideal for modern living requirements. Each element is precisely detailed to assist architects, builders, and homeowners in visualizing the structure's foundational and design components. From wall detailing to reinforced concrete slab specifications, this plan provides clarity and ensures an efficient construction process. The staircase section and front elevation offer insight into the aesthetic and functional aspects of the home, helping bring your vision to life with detailed architectural precision. Download this DWG file for a seamless design experience that combines practical structure with modern style.

Uploaded by:
Eiz
Luna

