16x32ft 4BHK house plan DWG with ground and first floor
Description
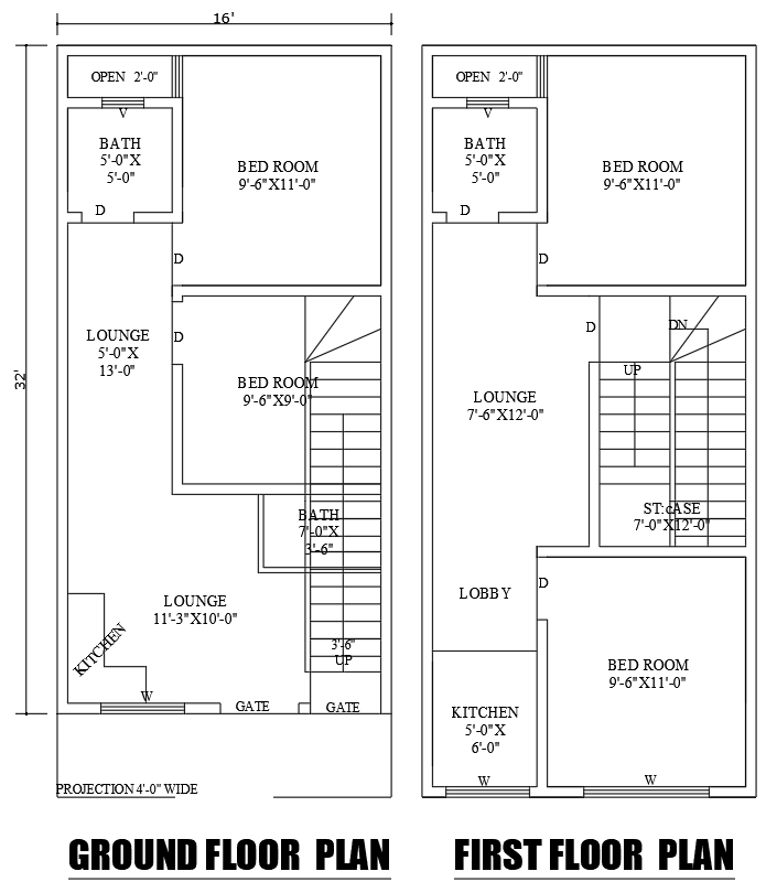
Discover a 16ft x 32ft ground and first floor 4BHK house plan design, featuring spacious and functional rooms for modern living. This layout includes four bedrooms, multiple bathrooms, a kitchen, and a comfortable lounge area, ideal for family living. The AUTOCAD DWG file is carefully designed to offer a practical and efficient use of space while maintaining an elegant, modern aesthetic. Perfect for architects and builders, this house plan ensures optimal space planning and functionality. Whether building a new home or renovating an existing one, this 4BHK plan is an excellent choice for creating a comfortable and stylish home.

Uploaded by:
Eiz
Luna

