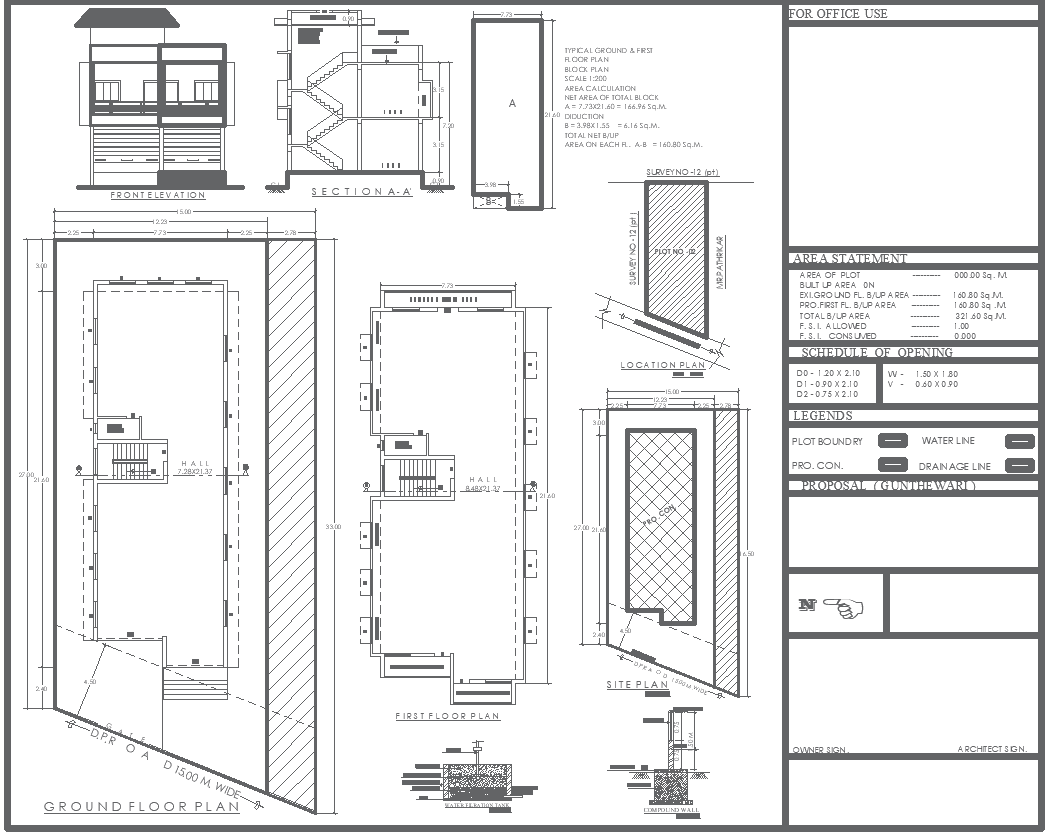
15m x 27m Two-Floor Hall Layout Plan with Elevation, Section & Site Plan Details - AutoCAD DWG
Description
Explore a comprehensive 15m x 27m two-floor hall layout featuring detailed architectural plans, including elevation, section, and wall details. This AutoCAD DWG file covers every aspect, such as bathrooms, water tanks, site, and location plans. The layout is designed to maximize space efficiency and provide an optimal flow for multi-purpose hall usage. With precise architectural elements like elevation and wall sections, this plan is perfect for developers and architects looking for a versatile layout that can accommodate events, gatherings, or commercial use. Download now to get all the details needed for your next project.

Uploaded by:
Eiz
Luna

