Stilt Floor Wiring Layout with Circuit Plan in DWG File
Description
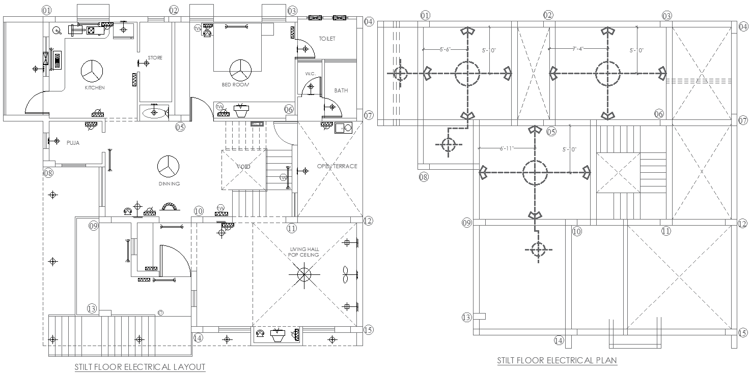
Access a professional Stilt Floor Electrical Layout Plan in AutoCAD DWG format, designed for precise electrical system integration. This file includes detailed wiring layouts, power distribution, lighting, socket placements, and switchboard designs. Perfect for electrical engineers and architects, it ensures the safe and efficient distribution of electrical power throughout the building. The DWG file is optimized for accurate installation and compliance with building codes, providing a smooth construction experience. Download this expertly crafted AutoCAD electrical layout file to simplify your electrical design process and ensure the safety and functionality of your stilt floor construction project.
File Type:
3d max
File Size:
2.6 MB
Category::
Electrical
Sub Category::
Architecture Electrical Plans
type:
Gold

Uploaded by:
Eiz
Luna

