Typical RCC Column Section and Elevation Details in DWG Format
Description
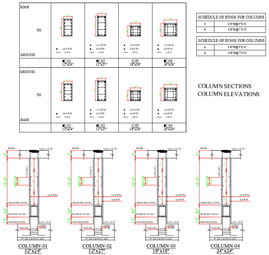
This AutoCAD DWG file presents detailed RCC column sections and elevation drawings covering sizes such as 12x24 inch, 12x27 inch, 18x18 inch, and 24x24 inch. Each column includes reinforcement layouts, longitudinal bars, stirrup spacing, ring schedules, and level-wise transitions from foundation to plinth, ground level, and roof. The drawing also provides accurate dimensions such as 14-5 8 inch, 12-5 8 inch, and 10-5 8 inch bar placements with corresponding spacing notes. Elevation views illustrate the full height from foundation level to roof, indicating plinth beams, footing lines, and clear cover requirements. This helps structural professionals understand the reinforcement flow and level-to-level continuity.
These column details are ideal for architects, civil engineers, and structural designers working on residential and commercial RCC buildings. The file includes a complete schedule of rings showing 3 8-inch rings at 5-inch and 7-inch spacing, ensuring accurate site execution. With clear section cuts and reinforcement patterns, this DWG helps improve precision during construction documentation and structural planning. It supports efficient coordination between design teams, contractors, and site engineers, making it a valuable resource for preparing working drawings and structural BOQs.
Uploaded by:
manveen
kaur

