Industrial Canning Line Machinery Layout with Detailed DWG Design
Description
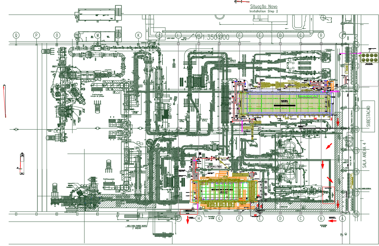
This AutoCAD DWG file presents a complete industrial canning line machinery layout, featuring detailed processing routes, equipment installation points, and mechanical flow design. The drawing includes machine beds, conveyor alignments, structural positions, and integrated piping paths essential for food manufacturing facilities. Each section of the layout shows clear production line sequencing, equipment connections, mechanical support grids, and installation zones marked with accurate dimensional references. The arrangement of machinery blocks, tanks, pipelines, and service corridors ensures smooth processing and optimal plant functionality. The included structural grid, equipment footprints, and alignment measurements support engineers in designing and coordinating industrial production setups with precision.
This DWG layout is ideal for architects, mechanical engineers, industrial planners, and production consultants who require a detailed visualization of a high capacity canning line. The drawing helps users understand workflow efficiency, machine placement strategies, utility access points, safety clearances, and operational pathways. With its extensive detailing of processing zones, loading and unloading points, and equipment interconnections, the file serves as a reliable resource for planning new installations or expanding existing facilities. This well organized canning line drawing supports accurate decision making during factory design, installation planning, and production optimization.
File Type:
DWG
File Size:
41.6 MB
Category::
Mechanical and Machinery
Sub Category::
Factory Machinery
type:
Gold
Uploaded by:
K.H.J
Jani

