27×50 5BHK House Layout with Construction Details in AutoCAD DWG File
Description
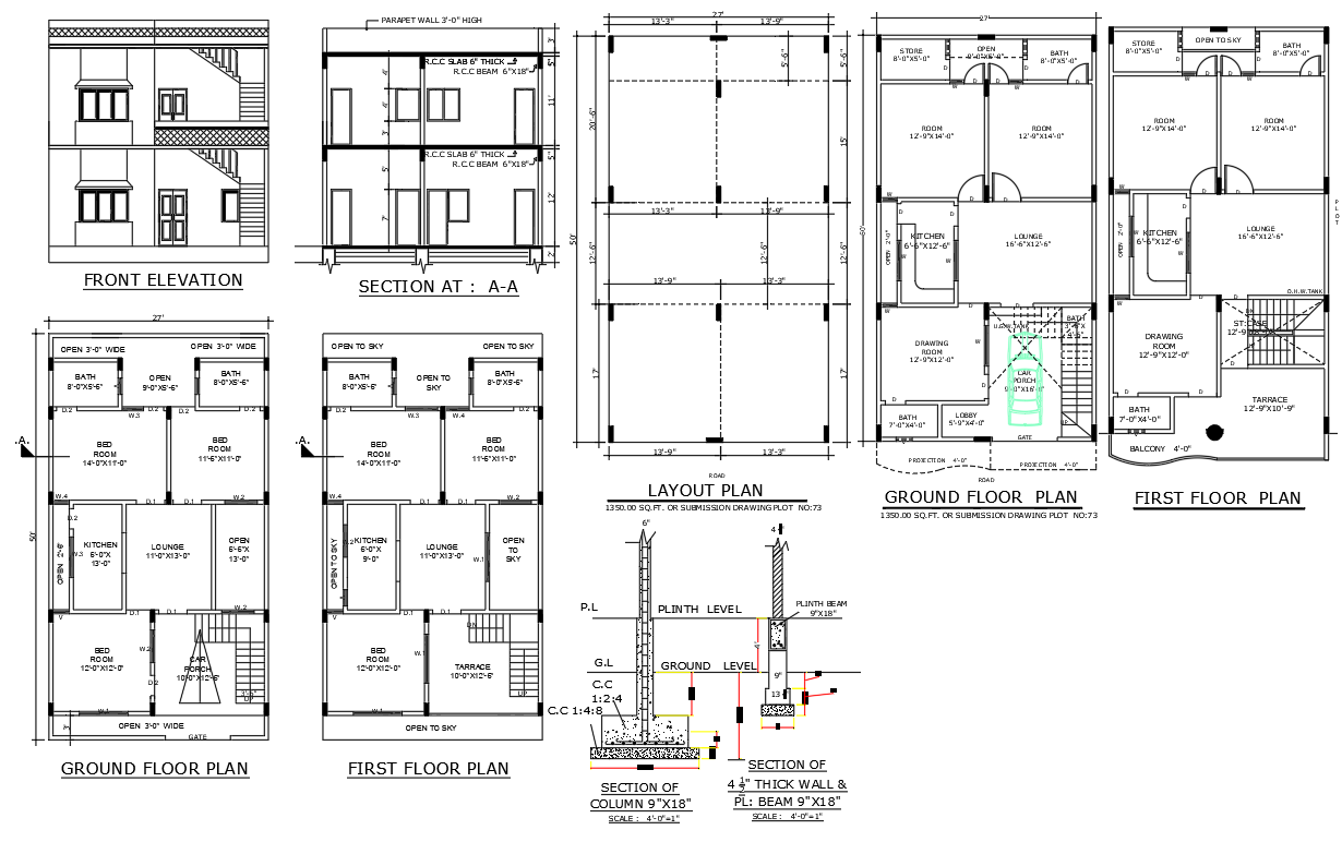
Discover a detailed architectural house plan sized 27 ft × 50 ft, featuring a 5?bedroom (5BHK) layout with full construction details. The design includes well-positioned bedrooms, a modern kitchen, common living spaces, and structural specifications. Available for download in DWG format, this plan serves architects, builders, or homeowners needing precise layout and construction guidance.
Uploaded by:
manveen
kaur

