30x60 Single Storey House Plan in DWG AutoCAD File with Full Layout
Description
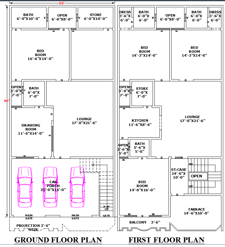
Discover a 30'x60' single-storey residential house plan in DWG format for AutoCAD. This CAD drawing features a detailed layout including bedrooms, bathrooms, kitchen, lounges, and circulation spaces with precise wall, door, and window placements. Roof layout and elevation guidance are included to aid visualization. Perfect for architects, builders, and homeowners, this DWG file ensures efficient space planning, interior flow, and practical construction for modern homes.
Uploaded by:
K.H.J
Jani

