Home Architectural Layout 27x50 DWG File for Residential Design
Description
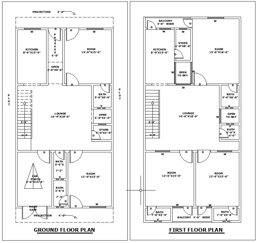
The 27x50 home architectural layout plan in DWG format offers a complete residential design with precise dimensions. This AutoCAD file details functional living and dining spaces, well-planned bedrooms, a kitchen, and bathrooms with accurate wall, door, and window placements. Roof layout and elevation notes provide structural clarity for construction planning. The CAD drawing file helps architects and homeowners visualize space utilization, interior flow, and building alignment effectively.
Uploaded by:
K.H.J
Jani

