4.50Mx8.00M Architectural Floor and Elevation in AutoCAD DWG File
Description
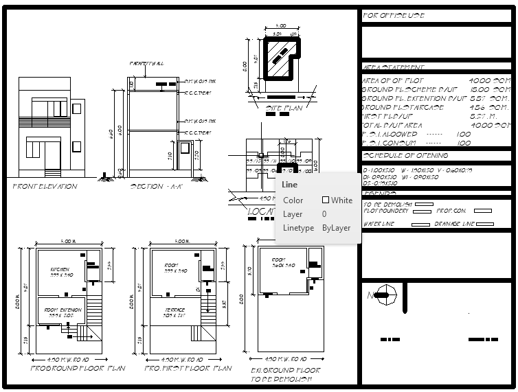
Access a comprehensive 4.50m × 8.00m architectural drawing in AutoCAD DWG format. This detailed layout includes front elevation, sectional views, ground and first-floor plans, a location map, compound wall design, and a water filtration tank. Ideal for architects and builders seeking a compact yet functional design for residential projects.
Uploaded by:
Priyanka
Patel

