3.50mx8.57m Residential House CAD Plan with Elevation and Section
Description
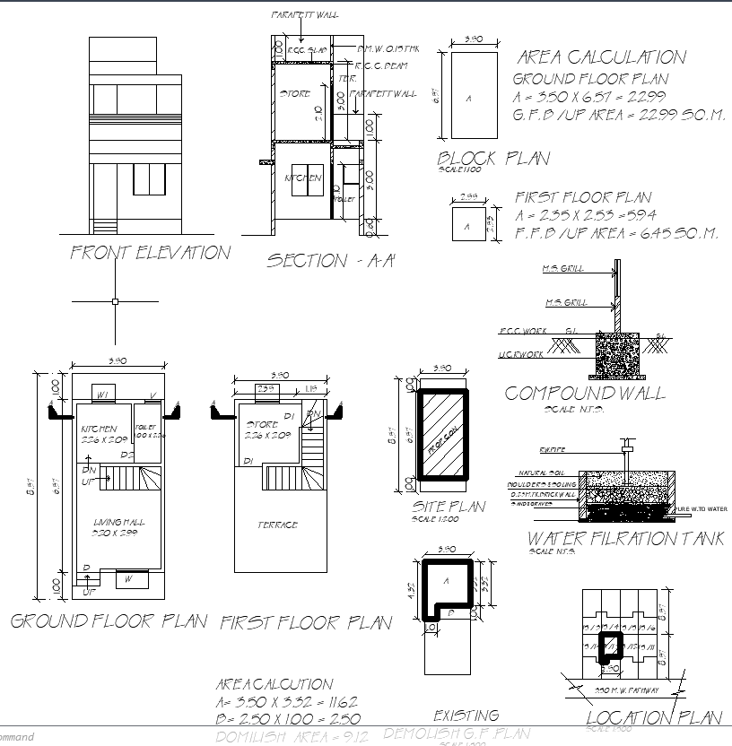
Explore a detailed 3.50m × 8.57m residential house plan in AutoCAD DWG format. This comprehensive layout includes ground and first-floor plans, front elevation, sectional views, compound wall design, and a water filtration tank. Ideal for architects and homeowners seeking a compact yet functional design.
Uploaded by:
Priyanka
Patel

