1BHK Architectural House CAD Plan 9x6.25m with Lobby and Floor Layout
Description
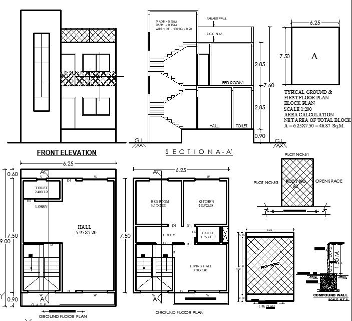
A detailed 9x6.25m architectural CAD plan featuring a 1BHK layout with two lobbies, a hall, kitchen, bathroom, and balcony. This comprehensive DWG file includes both floor plan and elevation views, making it ideal for compact residential designs. Perfect for architects, interior designers, and homeowners seeking efficient space utilization in a compact footprint.
Uploaded by:
K.H.J
Jani

