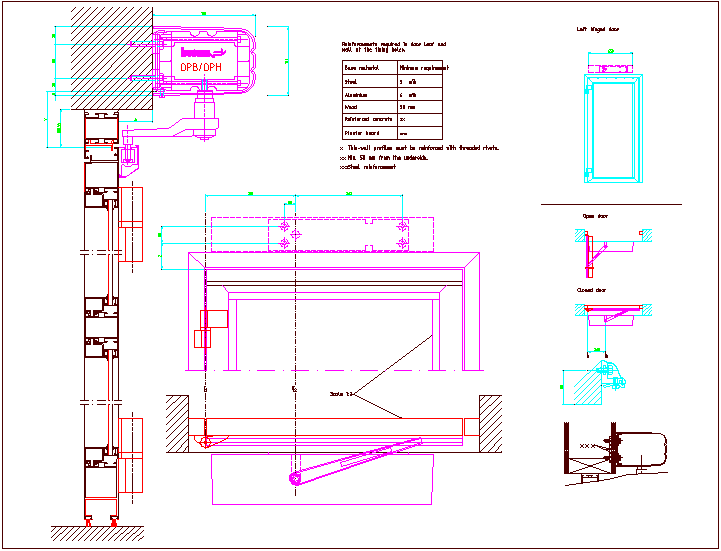
Sectional view detail of sliding door with detail view dwg file
Description
Sectional view detail of sliding door with detail view dwg file with view of door and
sectional view detail and dimension detail and detail view of door mounting,opening and closed view of door design.
File Type:
DWG
File Size:
166 KB
Category::
Dwg Cad Blocks
Sub Category::
Windows And Doors Dwg Blocks
type:
Gold
Uploaded by:

