15x12m Residential AutoCAD Plan with Parking and Lobby Design
Description
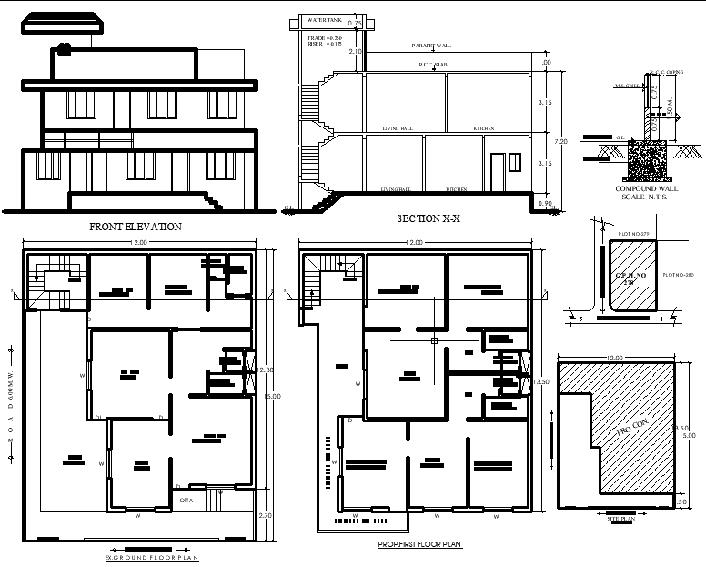
Discover a 15x12m residential CAD plan featuring a living room, kitchen, bedroom, lobby, parking area, and balcony. This DWG file includes detailed elevation and section views, providing a comprehensive layout for residential design.
Uploaded by:
K.H.J
Jani

