9x6.25m G plus 2 Residential CAD plan with Elevation and Section
Description
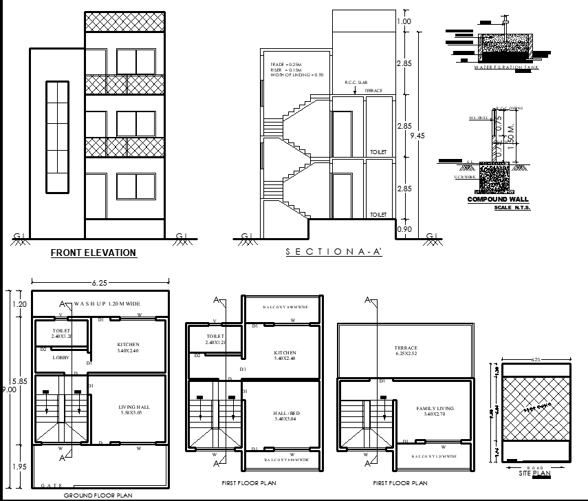
Discover a 9x6.25m G+2 residential CAD plan featuring a living room, bedroom, kitchen, lobby, toilet, terrace, and balcony. This AutoCAD DWG file includes detailed elevation and section views, providing a practical layout for modern homes.
Uploaded by:
K.H.J
Jani

