10.06x10.06m Gplus1 2BHK CAD Plan with Parking Area and Terrace Layout
Description
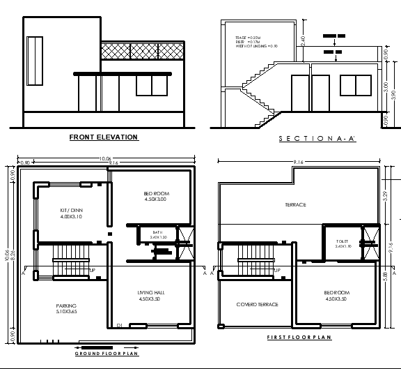
Access a 10.06x10.06m G+1 2BHK residential plan featuring a spacious living area, two bedrooms, kitchen, parking, and terrace. This AutoCAD DWG file includes detailed elevation and section views, providing a complete and practical layout for architects, builders, and modern home projects.
Uploaded by:
K.H.J
Jani

