30x54 Home Plan Collection with 4 Unique Designs in CAD DWG File

30x54 Home Plan Collection with 4 Unique Designs in CAD DWG File
Profile

Uploaded by:

K.H.J

Jani

Description

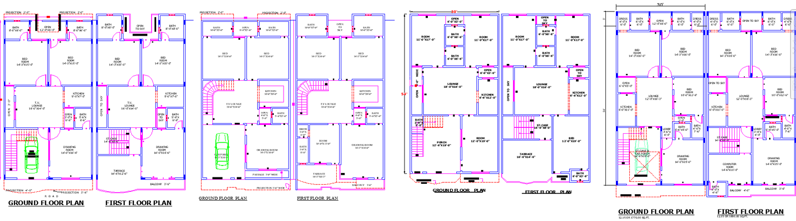
Discover a diverse collection of four distinct 30'x54' house plans, each offering detailed ground and first-floor layouts. These plans showcase comprehensive architectural elements, including walls, doors, windows, stairs, and more. Ideal for architects, builders, and homeowners, these DWG files provide a solid foundation for your residential design projects.

Profile

Uploaded by:

K.H.J

Jani

find Latest

Related Files

WhatsApp Chat