12.84×6m Residential House Floor Plan Bundle Layout in AutoCAD File
Description
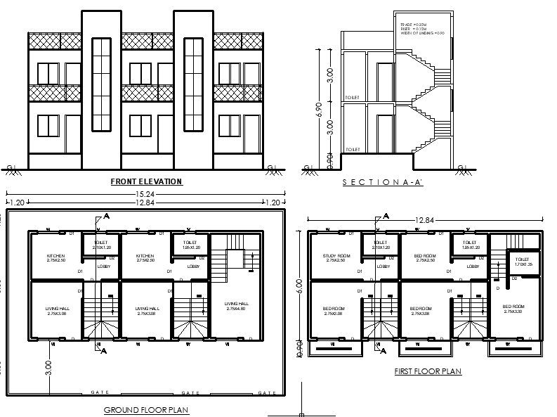
Get the 12.84m x 6.0m Residential House CAD Layouts in DWG Format, featuring comprehensive floor plans with rooms such as a study, toilet, balcony, and stair design. Perfect for residential construction projects requiring compact and efficient designs.
Uploaded by:
K.H.J
Jani

