7.05m×6.37m 1 BHK House Plan with Elevations in AutoCAD File
Description
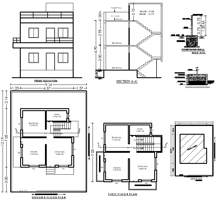
Discover a 7.05m x 6.37m single-storey 1BHK house plan with comprehensive features, including a toilet, balcony, site plan, water filtration tank section, compound wall section, and elevation. Perfect for efficient space utilization in residential construction.
Uploaded by:
K.H.J
Jani

