Office Layout 11.39mx7.88m Complete Design in CAD Drawing File
Description
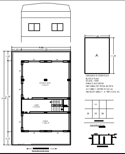
Access a detailed 11.39m x 7.88m office floor plan in CAD, including a welcoming lobby and efficient working area layout. Ideal for architects, engineers, and designers seeking accurate office design and layout solutions.
Uploaded by:
K.H.J
Jani

