13.99×10.685m 2 BHK Residential House Plan in AutoCAD DWG File
Description
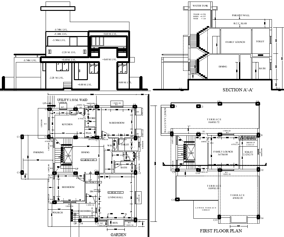
This 13.99m x 10.685m residential house plan in AutoCAD DWG format features two bedrooms, a living room, a kitchen, a dining area, a bathroom, a store, and a puja room, along with a porch, terrace, and balcony. The design also includes garden space, a verandah, and elevation and sectional views, offering a functional and modern layout suitable for architects, builders, and homeowners seeking efficient residential planning.
Uploaded by:
K.H.J
Jani

