Architectural House Plan with Electrical Layout in AutoCAD DWG File
Description
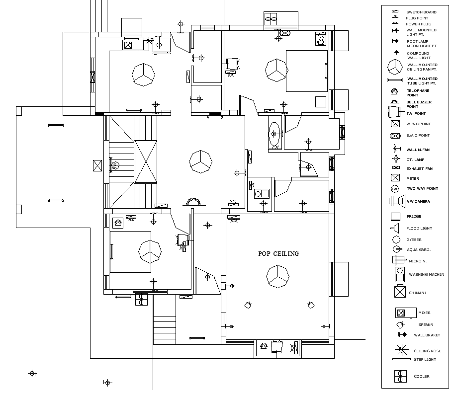
This architectural house plan presents a complete electrical layout combined with a detailed POP ceiling arrangement, showcasing the placement of switchboards, plug points, power plugs, wall-mounted light points, foot lamps, ceiling-mounted fixtures, and compound wall lights. The drawing includes symbols for AC points, telephone points, TV points, exhaust fans, two-way switches, bell buzzers, and meters, all distributed accurately across rooms. The POP ceiling details appear prominently in the living room, bedrooms, and central hall, each designed with a distinct geometric ceiling pattern. Additional information, such as door swings, furniture outlines, sanitary fittings, and staircase access, helps maintain proper coordination between the electrical and architectural elements.
The plan also highlights electrical points for refrigerators, geysers, aqua guards, washing machines, microwaves, mixers, and speakers, ensuring complete placement clarity for appliance installation. Ceiling rose positions, step lights, wall brackets, and flood lights are marked to achieve balanced illumination throughout the home. The layout carefully aligns lighting fixtures with circulation spaces, room proportions, and ventilation openings, making it ideal for engineers and designers planning a precise residential electrical system. This detailed arrangement ensures accurate wiring distribution, user convenience, and well-coordinated interior planning for modern residential design.
File Type:
DWG
File Size:
606 KB
Category::
Electrical
Sub Category::
Architecture Electrical Plans
type:
Free

Uploaded by:
Eiz
Luna

