Residential Column Footing and Plinth Beam Structural Plan CAD
Description
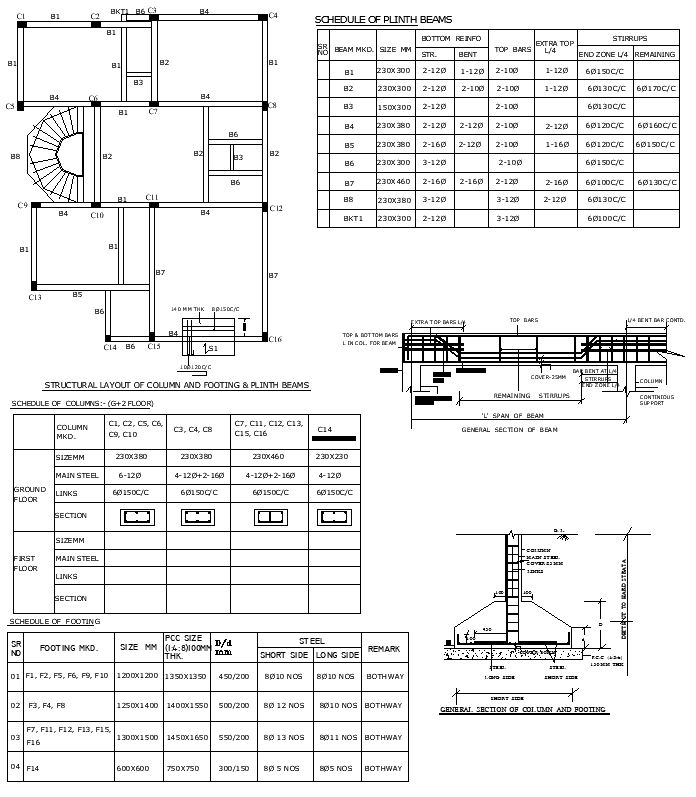
This structural drawing provides a complete layout of columns, plinth beams, and footings for a residential house, including detailed reinforcement schedules and beam sections. The plan includes the full plinth beam network marked as B1 to B8 and BKT1, each labeled with reinforcement like 2-12Ø, 1-12Ø, 4-12Ø, 6Ø150 C C, and 6Ø100 C C stirrups. Beam sizes such as 230x300 mm, 230x380 mm, and 150x300 mm are clearly shown along with bent bar lengths, extra top bars, and end zone reinforcement. A circular staircase beam arrangement is also included, reflecting accurate beam intersections and load distribution. The column schedule lists sizes like 230x380 mm, 230x460 mm, 230x230 mm, and corresponding reinforcement such as 4-12Ø+2-16Ø and 6-12Ø for ground and first floor levels.
The footing schedule provides specifications for F1 to F16 footings, mentioning sizes like 1200x1200 mm, 1400x1500 mm, and 1500x1500 mm, with PCC thickness of 1/4 810 mm, short bar and long bar reinforcement counts, and both-way reinforcement. The drawing also includes a general section of footing and beam showing cover, stirrups, bar placement, and depth details for accurate execution. This complete structural layout is ideal for engineers and architects managing residential RCC design.
Uploaded by:
K.H.J
Jani

