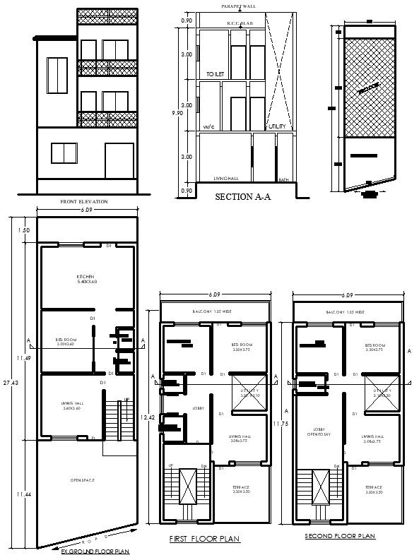
27.43m x 6.09m Multi-Storey House Plan in DWG CAD File
Description
Download a detailed 27.43m x 6.09m multi-storey house plan in AutoCAD DWG format. This plan includes 3 living rooms, 3 bedrooms, 3 kitchens, 2 baths, 2 WCs, a toilet, staircase, balcony, utility area, terrace, and open terrace. It also features elevation, site plan, and section details for a complete architectural reference.
Uploaded by:
K.H.J
Jani

