55x40 Multi-Unit Residential House Plan in CAD Drawing File
Description
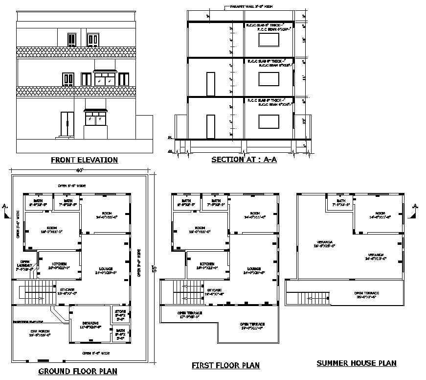
Explore a detailed 55' x 40' multiple residential house plan in DWG format. This CAD drawing includes 5 rooms, 2 lounges, a drawing room, 2 kitchens, 2 open areas, 5 baths, a staircase, a car porch, veranda and an open terrace. The design also features an elevation and section view, making it ideal for architects, designers, and homeowners.
Uploaded by:
K.H.J
Jani

