Unique two-storey residential 42 by 100 plan in AutoCAD File
Description
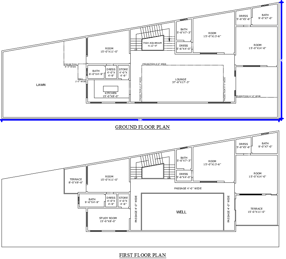
Explore this unique 42x100 house plan featuring a spacious lawn, an indoor fish aquarium, and a well. The ground floor includes multiple bedrooms, a large lounge, a modern kitchen, and attached baths, while the first floor adds a study room, terraces, and additional living spaces. Ideal for luxurious and nature-inspired home designs.

Uploaded by:
Eiz
Luna

