50x60 Commercial Home Plan with Residential Unit in CAD File
Description
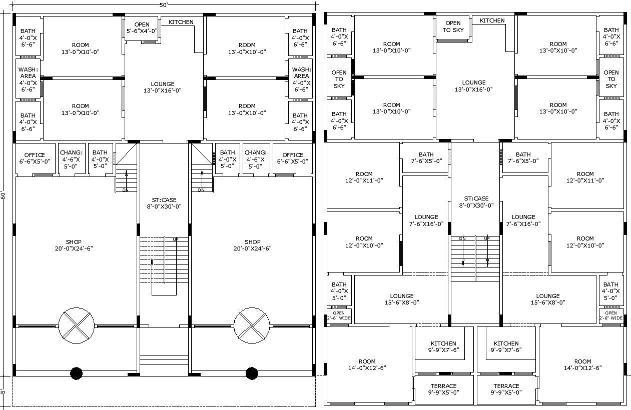
This 50x60 commercial building plan includes spacious shops on the ground floor, multiple rooms, lounges, offices, changing areas, and a staircase. The first floor features private residential units with kitchens, terraces, and open spaces, offering a perfect mix of business and living space. Ideal for commercial and residential use.

Uploaded by:
Eiz
Luna

