Compact 15×38 ft Residential House Plan in AutoCAD File
Description
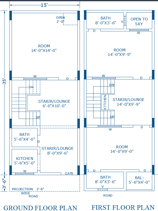
Discover a 15x35 house plan featuring two floors with spacious bedrooms, multiple bathrooms, a lounge, and a functional kitchen. The ground floor includes a well-planned living area, while the first floor offers additional rooms, a balcony, and an open-to-sky area for ventilation. This compact yet efficient design ensures maximum space utilization for modern urban living.

Uploaded by:
Eiz
Luna

