27x50 Multi-Storey Residential DWG Plan with Sections
Description
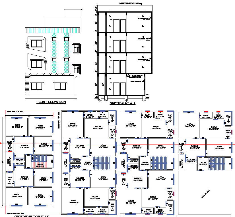
Download a detailed 27' X 50' multi-storey residential DWG plan in CAD format. This architectural drawing includes a well-planned lounge, kitchen, multiple rooms, and bathrooms with precise openings. The file also features sectional views, providing a complete structural layout for designers, architects, and engineers working on residential projects.
Uploaded by:
K.H.J
Jani

