Indoor Sports Center CAD Plan with 40x54 Court and 21x32 Squash Area
Description
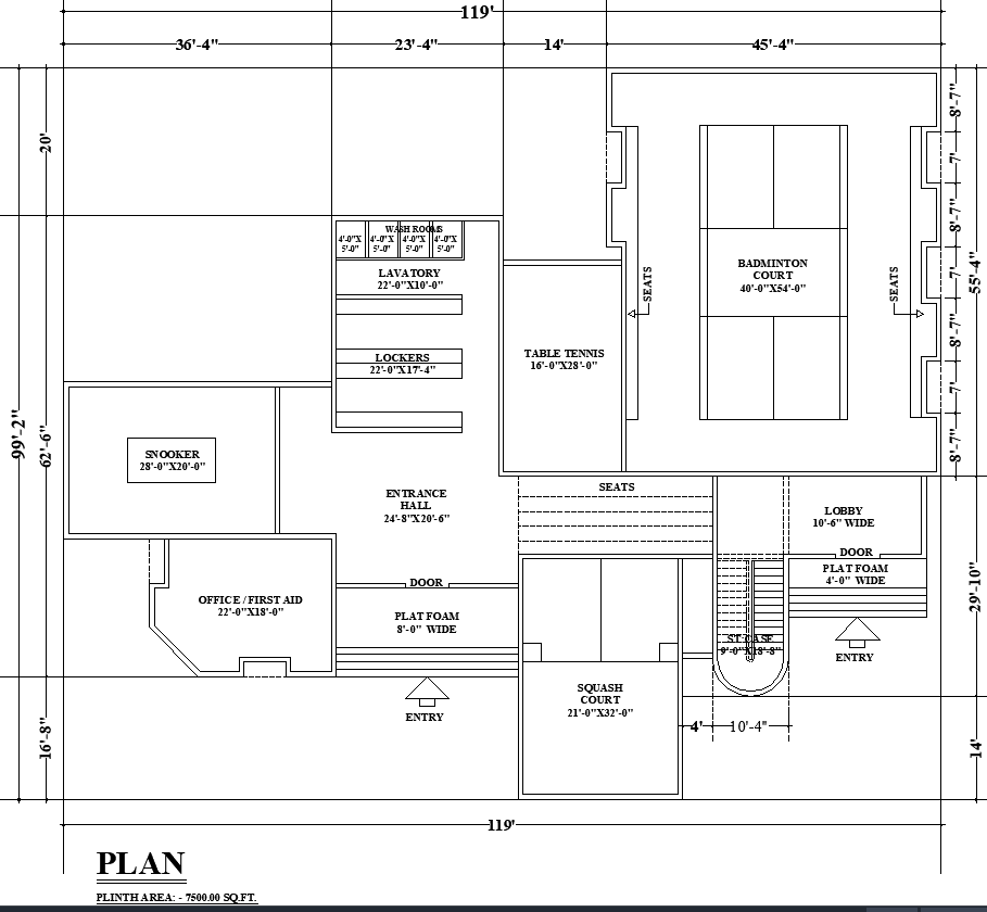
This detailed Indoor Sports Center CAD drawing presents a well-planned multi-activity facility featuring a 40 feet by 54 feet badminton court, a 21 feet by 32 feet squash court, and a 16 feet by 28 feet table tennis zone. The layout includes a 28-foot by 20-foot snooker room and a 24 feet 8 inches by 20-foot-6-inch entrance hall that connects all activity areas. Essential utilities such as washrooms measuring 4 feet 3 inches by 5 feet 9 inches, a 22 feet by 10 feet lavatory section, and a 22 feet by 17 feet 4 inches locker room are clearly marked for smooth user flow. Boundary dimensions, including 119 feet overall width, 66 feet depth, 20 feet offsets, and marked seating strips, ensure clarity in spatial planning and execution.
The drawing also incorporates a 10 feet 6 inches wide lobby, multiple entry points, an office, and a first aid room sized 22 feet by 13 feet, and dedicated platforms of 4 feet and 8 feet widths to regulate circulation. Seating arrangements along the courts and clear door placements improve visibility and accessibility across zones. This comprehensive CAD plan is ideal for designing indoor recreation centers, sports academies, coaching facilities, and institutional athletic blocks with accurate functional zoning and measurement-based detailing.

Uploaded by:
Eiz
Luna

