Multi-Storey 21x66 House Plan with Hall in AutoCAD DWG File
Description
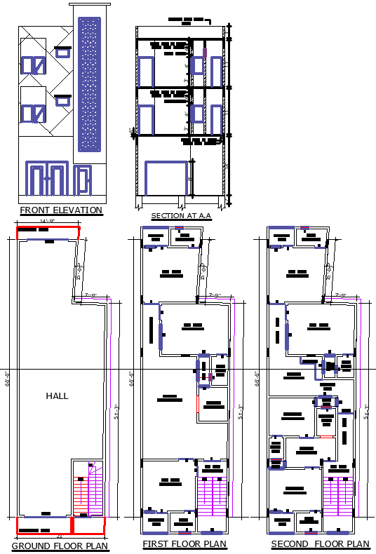
This AutoCAD DWG file presents a 21' x 66' multi-storey residential plan, elevation and section with a functional layout. The ground floor features a spacious hall, while the upper floor includes a well-planned residential space with bedrooms, kitchen, and bathrooms. Ideal for mixed-use buildings, this design ensures efficiency and comfort for both commercial and residential purposes.
Uploaded by:
K.H.J
Jani

