Septic Vault and Plumbing Fixture DWG with 1500 mm Tank Layout
Description
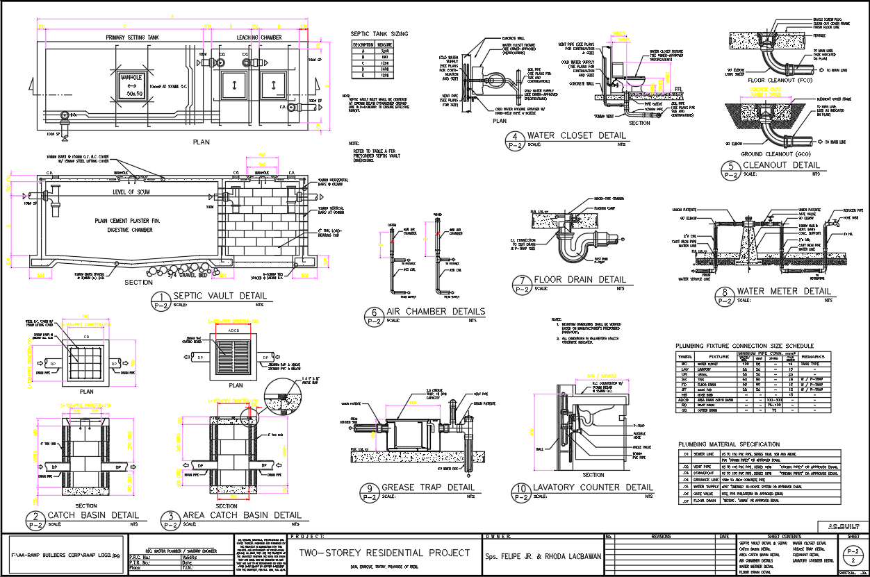
This AutoCAD DWG file presents a complete septic vault and plumbing fixture layout designed for a two-storey residential project, featuring detailed measurements and technical specifications. The drawing includes a 1500 mm deep primary settling tank, a leaching chamber with reinforced concrete walls, and a full septic tank sizing chart for accurate capacity planning. Plan and section views illustrate 900 mm internal widths, scum level markings, 100 mm drainage lines, vent pipe placements, and bedding material requirements. Additional components, such as 600 mm x 600 mm catch basin layouts, area drain details, a grease trap section, and air chamber measurements, are clearly displayed to support proper wastewater flow and maintenance access.
The file also provides technical fixture details such as a water closet connection using 100 mm PVC lines, ground cleanout sections, floor drain assembly, a lavatory counter detail, and a meter installation guide showing exact spacing and pipe alignment. A plumbing fixture connection size schedule lists drainage pipe diameters, supply line sizes, and fitting requirements for each fixture. Ideal for architects, civil engineers, builders, interior designers, and MEP professionals, this DWG offers a complete reference for creating accurate residential plumbing, drainage, and sanitation system drawings with reliable dimensioning and construction-ready design clarity.
Uploaded by:
K.H.J
Jani

