High Voltage Insulator Support Structure in AutoCAD File
Description
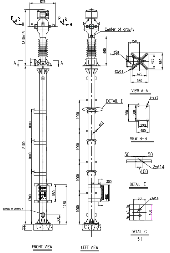
This AutoCAD drawing features a high-voltage insulator support structure with front, left, and sectional views. It includes precise dimensions, center of gravity details, and structural components. Ideal for engineers and designers working on power transmission and substation projects. Download this technical drawing for professional use.
File Type:
DWG
File Size:
6.9 MB
Category::
Electrical
Sub Category::
Electrical Automation Systems
type:
Gold

Uploaded by:
Eiz
Luna

