Fire Safety Section and Elevation Plan with 1 100 Scale Layout DWG
Description
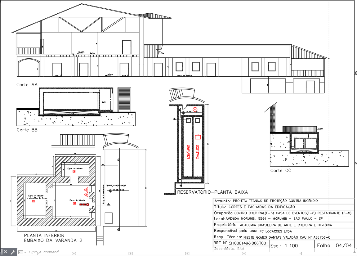
This AutoCAD DWG file presents a detailed fire safety section and elevation plan designed at a precise 1:100 scale, showcasing complete architectural and fire protection details for a cultural and event-based building. The drawing includes full sectional views such as Corte AA, Corte BB, and Corte CC, along with a complete elevation illustrating roof geometry, structural framing, window alignment, and access points. The plan also highlights the lower-level layout beneath the veranda featuring dedicated fire equipment zones, emergency storage areas, and marked access pathways. A fully dimensioned reservatorio planta baixa is included, outlining the structural enclosure, internal chamber arrangement, and protection equipment positioning, essential for correct installation and fire compliance reviews. Every measurement, level line, opening, and structural element has been captured with accuracy, ensuring professionals can rely on these drawings for planning, coordination, checking fire safety compliance, and developing technical reports. This file is ideal for architects, civil engineers, fire safety consultants, interior designers, builders, and CAD professionals who require precise section and elevation documentation for building approval workflows and fire protection design. Accessing this DWG file through a subscription unlocks even more high-quality technical drawings, helping users enhance productivity and deliver flawless project documentation.

Uploaded by:
Eiz
Luna

