School Building Fire Safety CAD Plan with Floors and Sections
Description
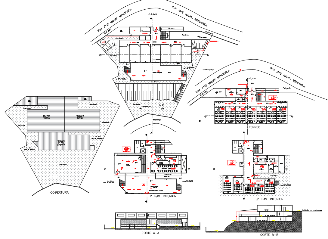
This detailed fire safety plan provides a complete layout of a multi-level school building, showing the arrangement of classrooms, administrative spaces, circulation corridors, and service areas, along with all essential fire protection elements. Each floor, including the ground level, upper levels, and basement or lower pavilion, is marked with fire extinguishers, alarms, hydrants, sprinkler points, and emergency exits to support clear evacuation procedures. The drawing also highlights escape routes, assembly areas, stair connections, and strategic access points from surrounding roads, helping emergency teams navigate the campus efficiently. Roof coverage, equipment placements, and zoning layouts are shown with precise annotations, ensuring easy interpretation and implementation during safety audits or compliance reviews.
The plan also includes sectional views and elevation cuts that reveal how fire protection systems integrate vertically within the structure. These sections illustrate staircases, fire walls, protected corridors, and equipment shafts that ensure safe movement during emergencies. The layout supports architects, safety engineers, school administrators, and regulatory inspectors in evaluating fire preparedness, designing preventive measures, and ensuring proper installation of fire equipment across all building levels. With its comprehensive detailing and clear symbol-based representation, this file serves as a valuable reference for developing effective emergency response strategies and improving overall safety within educational environments.

Uploaded by:
Eiz
Luna

