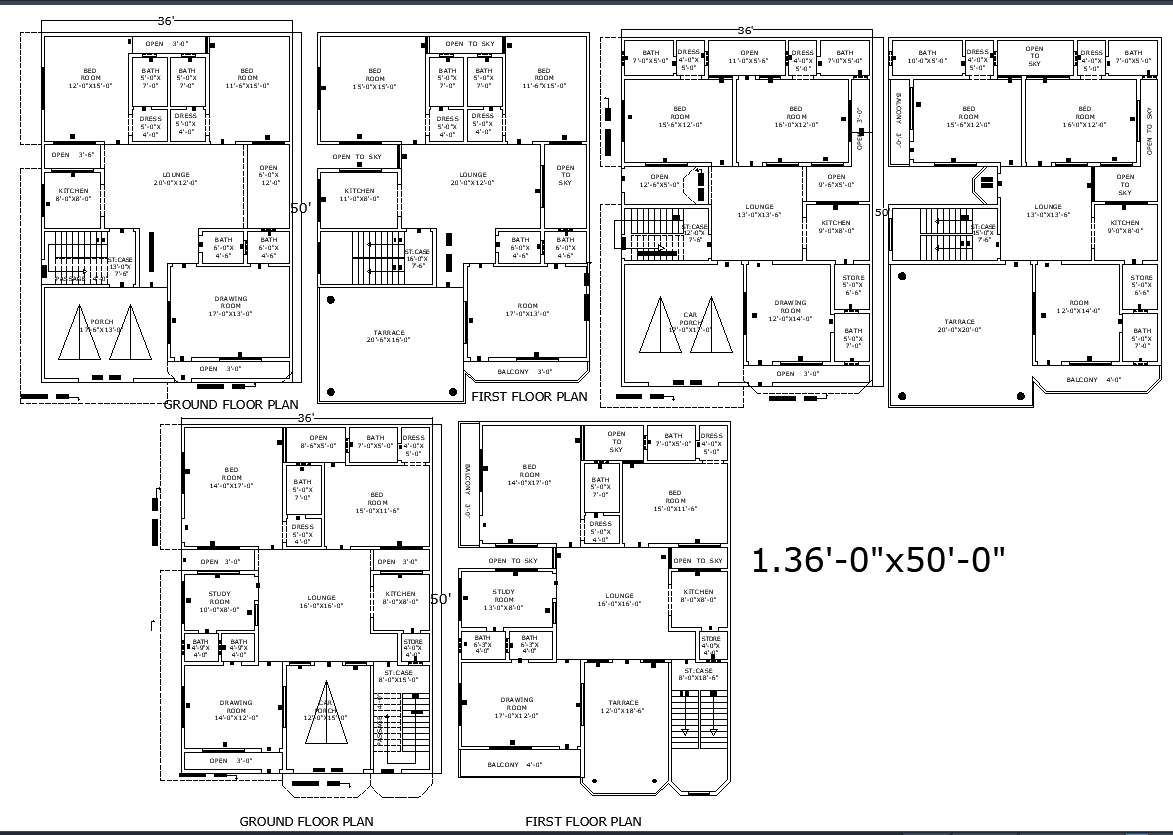
3 Residential House Plans for 36x50 Plot in CAD Format
Description
Discover 3 unique residential house plan options for a 36'x50' plot, each offering a thoughtful layout with spacious bedrooms, modern lounges, stylish kitchens, and open terraces. Whether you need a family-friendly duplex, a home with study space, or a house with a lawn, we’ve got a plan that fits.

Uploaded by:
Eiz
Luna

