Detailed 54x50 House Floor Plans in AutoCAD DWG File
Description
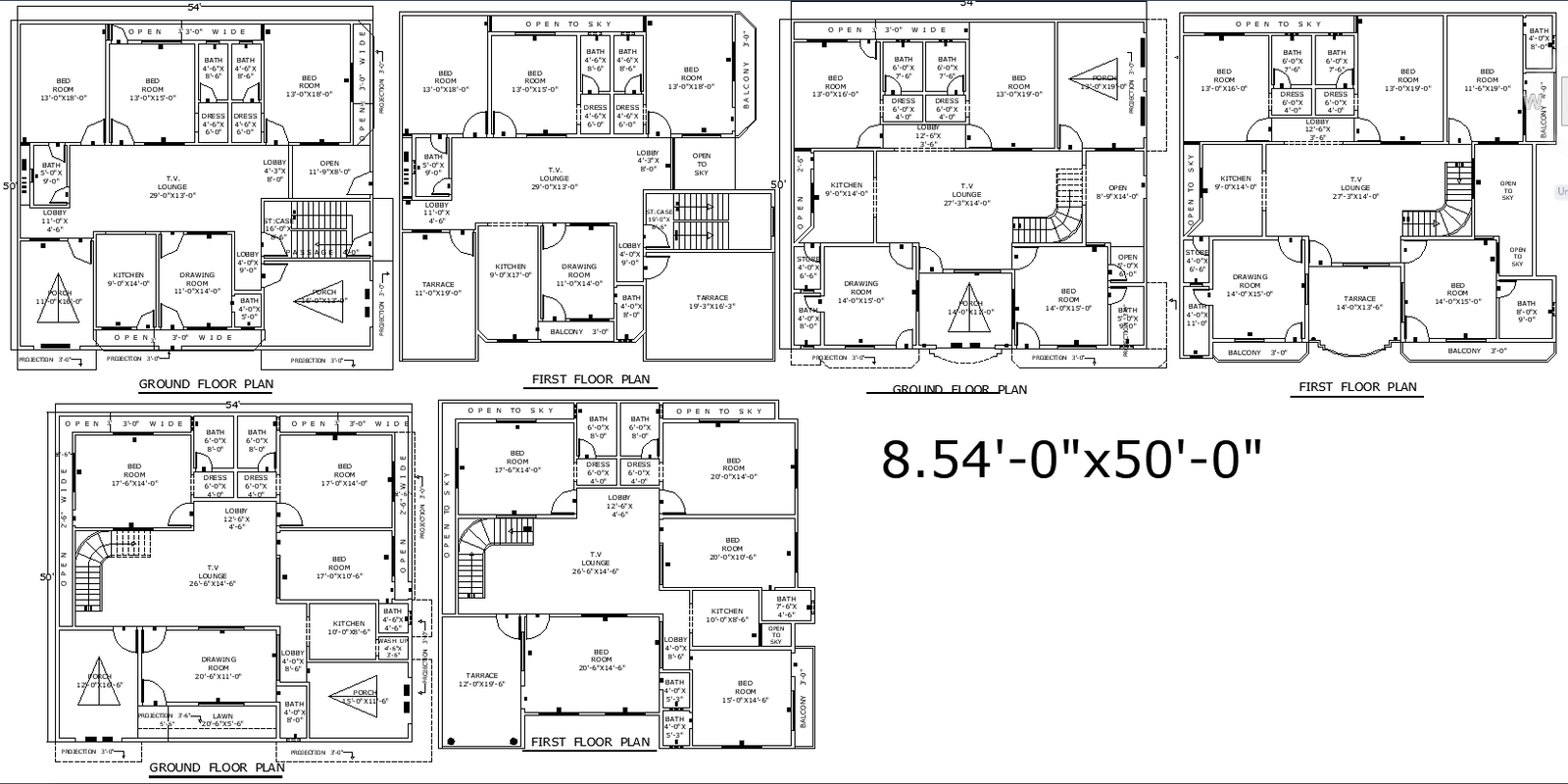
Browse 4 expertly crafted residential house floor plans designed for an 54'x50' plot. These layouts include multiple bedrooms, living spaces, open kitchens, and well-planned balconies. Each plan offers functional space distribution, ideal for medium to large families seeking modern and efficient living solutions.

Uploaded by:
Eiz
Luna

