Synergy District Pond Pump House Plan in AutoCAD DWG File
Description
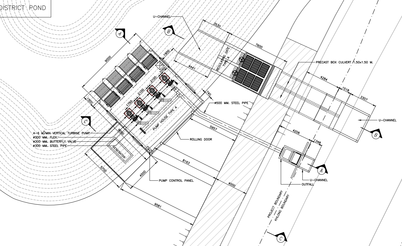
This AutoCAD DWG drawing shows the detailed plan layout of a pump house for the Synergy District Pond. It includes turbine pumps, butterfly valves, control panels, steel pipe systems, culverts, outfall points, and structural elements like U-channels and rolling doors for infrastructure design purposes.
File Type:
DWG
File Size:
16.2 MB
Category::
Construction
Sub Category::
Construction Detail Drawings
type:
Gold

Uploaded by:
Eiz
Luna

